top of page

Where Rwandan soil rises to meet the sky, divine light bridges the gap between heaven and earth and all come together as one.
The chapel of the Crossing marks the meeting of God and mortal. Tutsi and Hutu; local and travel; all gathering together to celebrate the glory of the divine.
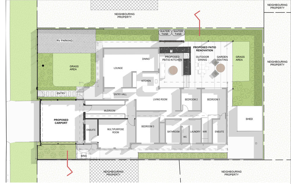
Rhuddlan Residence
Client
Private
Status
In Progress
Location
Brisbane / Meeanjin
Alterations and additions to an existing 1 storey brick residence in Carindale, Brisbane. The brief encompasses a new secure carport, fence and pedestrian entrance to the front, conversion of the old garage into a multip-purpose master suite, and renovated rear patio complete with newenvironmentally responsive roof, outdoor kitchen, and gardening work space.
bottom of page





















